- Startseite >
- Neige et Soleil C Nr 6 - 4/5 Betten
Neige et Soleil C Nr 6 - 4/5 Betten
Verfügbarkeiten
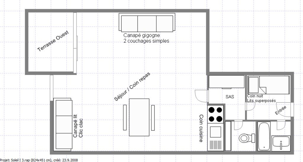
Ferienwohnung. 32m², 4/5 Betten. Hochbett im Eingang, 2 Konvertible sofa im Wohnzimmer ( getrennt in 2 für die Nacht). 1 Badezimmer. Etage 1. Schöner West Balkon mit Blick auf das Tal. 200m von den Liften, Schischule, Kindergarten.
In Kürze
- Name des Dorfes oder Wohnviertel :
- Plan-Peisey Sportort 1650 m Wohnviertel Le Soleil
- Unterkunftskategorie :
- Ferienwohnung / Studio
- Lage & Entfernung der Skimöglichkeiten :
- Ski lift zwischen 100 & 200 m
- Im Wintersportort 1600 m Höhe
- Bus Haltestelle 100 m oder weniger
- Classement en meublé de tourisme :
- Wahl je nach der Residenz oder Viertel :
- NEIGE ET SOLEIL résidence A, B, C ,D
- Die Residenz :
- Erbaut in : 1980
- Residenz mit Geschäfte im Erdgeschoss
- Residenz ohne Lift
- Das Wesentliche : Wohnfläche, Betten, Schlafzimmer, Badezimmer :
- 32 Wohnfläche in Qm :
- Anzahl Betten : 5
- Schlafmöglichkeiten im Wohnzimmer : 4
- Wohnung in einer Residenz
- Ausrichtung, Balkone, Terrassen, Ausblick. :
- Wohnzimmer westlich augerichtet
- Anzahl Balkon 1
- Tisch und Stühlen für Draussen
- Tarentaise Tal Aussicht
- Im Wohnzimmer :
- Parkettboden
- Anzahl klicken klapp Sofabett für 2 Personnen 140/190 cm 2
- Anzahl Plätze vom Tisch 4
- Ausziehtisch
- Anzahl Stuhle 4
- Fernsehapparat mit TNT und Satellitenkanäle
- WIFI Verbindung (zu bezahlen)
- Aussttung der Küche :
- Offene Kochnische
- Waschbecke mit ein Behälter
- Klein Ofen
- Geschirrspüler
- Anzahl Heiz Platten : 2
- Klein Kühlschrank mit Freezer
- Kessel
- Kaffee Maschine
- Schlafraum Nummer : :
- Das ist eine Schlaffecke
- Von einer Tür geschlossen
- Anzahl Hochbett 90 x 190cm für 2 personnen : 1
- Badezimmer auf derselben Etage 1
- Ein WC auf derselben Etage
- Eigenständige Badezimmer & WC :
- Anzahl Badezimmer mit Waschbecken : 1
- Waschmaschine im Badezimmer
- Anzahl unabhängige WC 1
- kostenpflichtige Dienste :
- WIFI, 4G Schlüssel 39€
- Detailsuche :
Ausrüstung, Dienstleistungen
- Dienstleitungen Entfernung :
- Lebensmittelgeschäft Entfernung : 50m
- Sportausrüstunggeschäft Entfernung : 50m
- Kindergarten Chat Botté Entfernung : 200m
- Skischule ESF Plan-Peisey Entfernung : 200m
- Zugang : Parking, Stockwerken :
- Entfernung bis zum öffentlichem freien Parkplatz : 50m
- Etage von Haupteingang : 1
- Dependancen, Skiabstellräume, Garage :
- Skiraum im Eingang der Wohnung
- Wäsche :
- Bettwäsche inbegriffen für Wochen Aufenthalte im Winter
- Bettwäsche nicht zu Verfügung im Sommer
- Bettwäsche für kurz Aufenthalte zu Verfügung
- Bettwäsche an der rezeption zu Vermieten 18€ / 21€
- Badewäsche zu Vermieten.. Preis pro Person : 10€
- Badewäsche im Sommer nicht zu Verfügung (Handtuch & Badetuch)
Buchungsbedingungen
- HausTiere :
- Haustiere nicht gestattet
- Buchungbedingungen :
- Versicherung für Stornierung 3.3% der Miete
- 30 % erste Zahlung für Buchung :
- Restbetrag ein Monat vor Anreise zu zahlen
- Zahlung mit CB und Banktransfer.
- 10 Tage vor Anreise : Nur CB Buchung
- Zahlung bei Paybox. Sichere Website
- Kriegen Sie Kontakt vom Gastgeber
- Last-minute (weniger als ein Monat) Buchung :
- Kurtaxe ist im Betrag inbegriffen
- - die Kurtaxe pro Erwachsene und pro Nacht
- A la carte Dienstleistungen zu bezahlen
- Kaution oder Sicherheitsleistungen :
- Die Verwaltung der Kaution liegt in der Verantwortung des Beherbergers
- Kaution zu zahlen online vor der Ankunft auf swikly.com 400 €
- Buchungbedingungen :
- An & Abreise Zeiten mit der Agentur stimmen
- Sie werden bei einem profi bekommen werden : Immobilienagentur
- Sie werden Ihre Skipässe und Voucher
- Inventar selbst zu prüffen & and der Agentur zu übergeben
- Bitte beachten Sie : :
- Wir übernehmen keine Haftung für Störungen des Telefonnetzes und des Internets
FICHE_INFO_SIMPLE_LIBELLE_DESTINATION
Résidence Neige et Soleil
Plan Peisey
73210
PEISEY VALLANDRY
GPS-Koordinaten
Breitengrad : 45.55246
Längengrad : 6.76301
👉 Begrenzte Startplätze (200 Personen) – warte nicht zu lange!




























